Multilocale in vendita

Roma, Via delle Rondini - Torre Maura
€ 459.000
6 locali 6 locali
190 Mq 190 Mq
3 bagni 3 bagni

Multilocale in vendita

Roma, Via delle Rondini - Torre Maura

Descrizione annuncio

Via delle Rondini:

Proponiamo una soluzione unica nel suo genere nel quartiere di Torre Maura in una delle vie residenziali del quartiere, adiacente ai principali servizi che la zona offre.

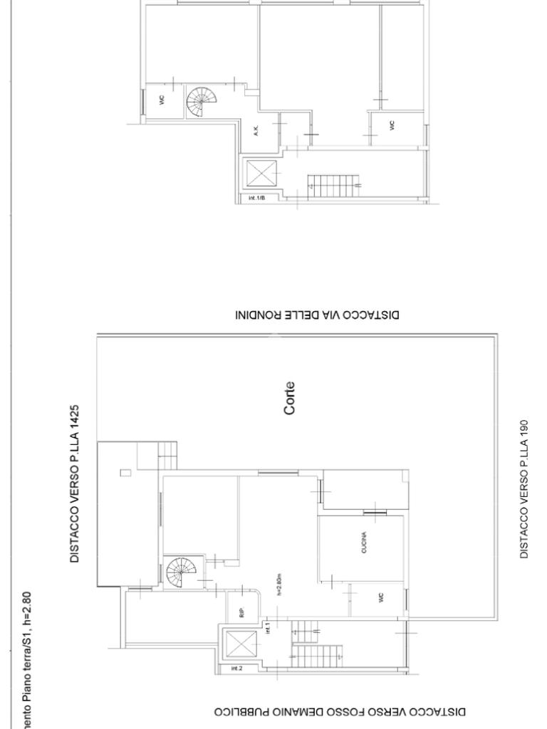
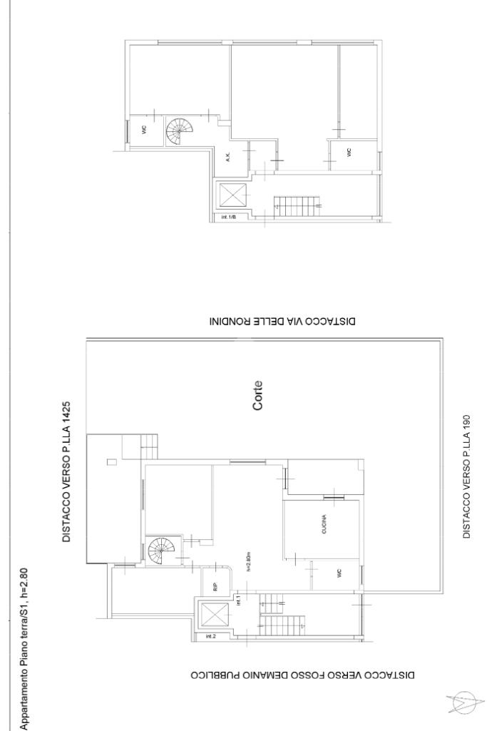
Appartamento di 190mq commerciali suddiviso su due livelli così composto:

Al piano terra troviamo un ampia zona giorno, con cucina, bagno, 2 camere da letto, studio, bagno, corte pavimentata e ampio giardino.

Piano seminterrato composto da soggiorno con angolo cottura, 2 camere, 2 bagni e zona lavanderia.

Gli immobili sono collegati da una scala interna ma sono la soluzione perfetta per chi ha la necessità di due unità divise, difatti, vi è la possibilità di dividere nuovamente gli appartamenti e ottenere 2 Trilocali ed entrambi si presentano in ottimo stato.

Lo stabile è in cortina e l'ascensore è collegato anche con la zona dei box.

Possibilità di acquisto box auto di 30mq a 39.000€

La posizione è molto comoda, infatti l'appartamento è ben collegato ai principali servizi della zona, come scuole, farmacie, poste italiane, caffè, bar, supermercati e il centro commerciale Casilino. Inoltre, è possibile raggiungere facilmente le fermate metro C, così come la linea autobus N18.

Inoltre, è possibile acquisire mutui con consulenze personalizzate grazie alla presenza di consulenti disponibili in ufficio. Infine, è possibile effettuare sopralluoghi gratuiti per valutare i vostri immobili.

Non perdete l'occasione di acquistare questo splendido appartamento nel quartiere di Torre Maura!

Il presente annuncio è puramente descrittivo, tutta la documentazione inerente all'immobile è visionabile presso i locali della nostra agenzia.

Mostra tutto

Nelle vicinanze

Trasporto pubblico Trasporto pubblico
Torre Maura
Torre Maura
710 m
Giardinetti
Giardinetti
1,2 Km
Fosso Santa Maura/Rondini
Fosso Santa Maura/Rondini
310 m
Torre Maura/Ghiandaie
Torre Maura/Ghiandaie
430 m
Ricariche auto elettriche Ricariche auto elettriche
Roma Alimena | EnelX
1,3 Km
Eneldrive Cinecittà
2,4 Km
Roma CC Anagnina | EnelX fast
2,5 Km
IKEA Roma Anagnina
2,7 Km
EnelX EVAD IKEA Anagnina
2,9 Km
Scuole Scuole
Scuole
450 m
Scuola media inferiore - Martin Luther King
580 m
INFN
810 m
Scuola Media Italo Calvino
830 m
Scuola elementare Federico Fellini
840 m
Farmacia Farmacia
Farmacia delle Rondini Dr Macaluso
550 m
Farmacia Dottor Squarti
800 m
Farmacia Panunzi
850 m
Farmacia Sanasi
1,1 Km
Zamponi
1,1 Km
Ospedali Ospedali
Casa di riposo Bruno Buozzi
1,0 Km
Ambulatorio Policlinico Casilino – Edificio D
1,1 Km
Policlinico Casilino
1,1 Km
Farmacia Berna
2,3 Km
Pronto Soccorso Policlinico Tor Vergata
2,8 Km
Supermercati Supermercati
Todis
490 m
Conad
730 m
InGrande
770 m
Carrefour
840 m
EuroSpin
910 m
Negozi Negozi
Negozi
370 m
Ciak si sforna
570 m
Forno Castelli Romani
620 m
Panificio/Forno Pelliccioni e Figli
730 m
Ciao ciao
750 m
Bar Bar
medcafè
1,0 Km
Barrio Latino
1,3 Km
Replatz sport bar since 1960
1,7 Km
Bar
2,3 Km
Bar Pasticceria La Bontà
2,5 Km
Ristoranti Ristoranti
Ristoranti
340 m
La Fraschetta del Pesce Express
490 m
La Fraschetta del Pesce
520 m
Spizzala
520 m
La pasta di Chiara
620 m
Mostra tutto

Caratteristiche

Rif.:
61202613
Piano:
Su più livelli di 2 con ascensore
Totale piani:
2
Box:
1
Terrazzi:
1
Camere da letto:
4
Mostra tutto
Prezzo Prezzo
€ 459.000
Prezzo box Prezzo box
€ 39.000
Rata mutuo Rata mutuo
€ 2.175 / mese
Proponi il tuo prezzoProponi il tuo prezzo

Classe Energetica

F
F
F
F
F
F
F
F
F
EP globale rinnovabile:
119.00 kW h/m² anno
Anno di costruzione:
1994
Riscaldamento:
Autonomo
Tipo impianto:
A radiatori
Tipo alimentazione:
Metano

Ti interessa visionare l'immobile?

Fissa un appuntamento  Fissa un appuntamento

Richiedi informazioni

Clicca su Leggi per aprire l'informativa
* Questi campi sono obbligatori

Calcola il tuo mutuo

Semplice e senza impegno
Anticipo

( % )
Mutuo

( % )

pochi semplici passi

inserisci i tuoi dati
Questionario completato
Grazie per aver richiesto un appuntamento senza impegno con un nostro Consulente del Credito e Assicurativo.

Hai inserito correttamente tutti i dati necessari e a breve riceverai una e-mail con un link da convalidare per inviare i tuoi dati.
Affiliato
Immobiliare Torrespaccata Srl
Via Aufidio Namusa, 222 00169 Roma (RM)

Il nostro staff


  • Marzia Giovannini
    Coordinatrice

  • Marco Giuli
    Affiliato

  • Lorenzo Siviero Sabatini
    Collaboratore
Via Aufidio Namusa, 222 00169 Roma (RM)
Zona: Torre Spaccata - Torre Maura
Mostra su mappa
Orari: Dal lunedì al venerdì dalle 9.00-13.00 e dalle 15.30-20.00 sabato chiusura alle 13.00
Affiliato
Immobiliare Torrespaccata Srl
Via Aufidio Namusa, 222 00169 Roma (RM)

2026 Tecnocasa Franchising S.p.A. - P. IVA 08365160152 - Via Monte Bianco 60/A 20089 Rozzano (MI). Ogni agenzia ha un proprio titolare ed è autonoma. Privacy policy | Policy utilizzo | Cookie policy